Porte du Martray - Loudun (86)
Restauration et conservation de l’édifice
- Maître d’ouvrage : Commune de Loudun
- Protection : Classée au titre des Monuments historiques le 24 avril 1946
- Années de réalisation :
Entre septembre 2013 et octobre 2015
Les travaux réalisés
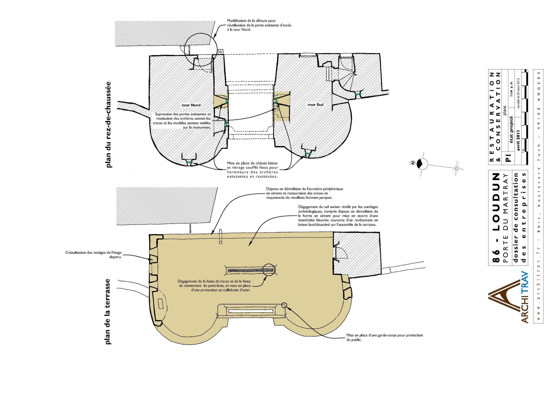
Construite dans le dernier tiers du XIVe siècle, remaniée à la fin du XVIe siècle, la porte du Martray est l’ancien accès ouest à la ville close de Loudun.
Les travaux de la présente opération ont été divisés en deux tranches qui ont surtout porté sur la restauration des parements de pierres de tuffeau des façades, des murs du passage, des parapets et de la terrasse. Les joints au ciment ont été purgés et refaits au mortier de chaux. Les menuiseries ont été remplacées par des ouvrages de style XVIIIe siècle, correspondant à la période d’ouverture des baies et à l’aménagement des salles. Les archères ont été rouvertes ou remodelées pour retrouver leurs proportions d’origine.
Enfin, le revêtement cimenté de la terrasse a été supprimé sous surveillance archéologique, permettant de retrouver un dallage en pierre. Ce dernier a été conservé et protégé par un dallage en béton de chaux mis en œuvre sur une étanchéité bitumeuse.
- Tranche A : Travaux en élévation de la tour Nord ; travaux dans le passage
- Tranche B : Travaux en élévation de la tour Sud & la tourelle d’escalier ; travaux sur les parties hautes.




