Chancellerie d'Orléans - Hôtel de Rohan
Archives Nationales - Paris
Restauration et remontage des décors de la Chancellerie d’Orléans dans l’hôtel de Rohan
- Maître d’ouvrage : Opérateur du patrimoine et des projets immobiliers de la culture (OPPIC)
- Années de réalisation : En cours depuis novembre 2015
Projet
L'Hôtel de Rohan est un bel édifice du XVIIIe, construit par Delamair. L’état dans lequel il nous est parvenu est issu des multiples occupations qui ont été faites de l’édifice, depuis l’hôtel particulier d’Armand-Gaston de Rohan réaménagé par ses occupants ultérieurs jusqu’à son utilisation intensive pour l’Imprimerie Nationale puis les Archives Nationales. C’est depuis le classement au titre des monuments Historiques en 1924 que l’édifice a repris petit à petit son aspect initial.
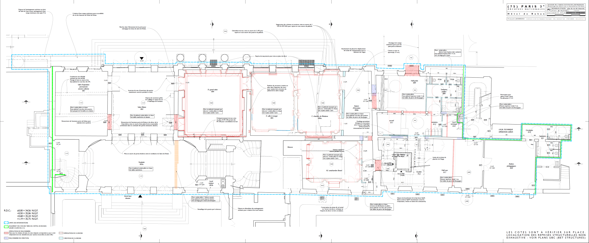
La présente opération concerne le remontage des décors de la Chancellerie d’Orléans dans l’hôtel de Rohan.
Les décors et les boiseries de l’hôtel dit de la Chancellerie d’Orléans décoraient l’ancien hôtel de Voyer d’Argenson (1705), dû à l’architecte Germain Boffrand et classé au titre des monuments historiques en 1914. L’hôtel fut déclassé en 1923 pour permettre sa démolition au profit de l’agrandissement de l’emprise de la Banque de France. Cette démolition, toutefois, ne fut autorisée que moyennant l’engagement, pris par la Banque de France, de remonter ces décors dans un autre lieu. C’est pourquoi ces derniers, boiseries et éléments sculptés et d’architecture furent démontés avec soin et conservés.
Depuis la convention signée en juillet 2015 entre le MCC et la Banque de France, nous sommes architecte Mandataire de la présente opération qui comprend quatre sous-opérations en cotraitance avec l’atelier Cairn :
- Sous-opération 1 :
achèvement de la restauration des décors en atelier ;
- Sous-opération 2 : travaux de remontage des décors ;
- Sous-opération 3 :
travaux préparatoires dans l’hôtel de Rohan ;
- Sous-opération 4 :
travaux d’accueil et d’accessibilité dans le bâtiment jouxtant l’hôtel.
Le chantier du remontage des décors de la Chancellerie d’Orléans à l’Hôtel de Rohan. 2009 - 2021 from Oppic on Vimeo.
Toutes les étapes de ce chantier exceptionnel assuré par l'OPPIC de la restauration des décors de la Chancellerie d'Orléans







