Ancien Tribunal - Baugé-en-Anjou (49)
Nature de l’opération: Requalification du tribunal en espace de l’Assemblée - Maison du citoyen
- Maître d’Ouvrage: COMMUNE DE BAUGÉ-EN-ANJOU
- Protection: inscrit au titre des Monuments Historiques le 05 décembre 1986
- Année de réalisation: 2021-2025

Projet
Au cœur du bourg, le tribunal de Baugé a été construit entre 1862 et 1866, d’après les plans de l’architecte tourangeau Léon Rohard. De style néo-classique, il est inspirés par le Palais de Justice de Paris. Sa majestueuse façade principale est agrémentée de quatre colonnes doriques à double volutes, soutenant un rebord de toit orné d'une remarquable frise sculptée. L'intérieur de l'édifice dévoile d'immenses salles aux murs couverts de boiseries et de cheminées de pierre sculptées. L'actuelle salle d'audience du tribunal est décorée avec une tapisserie ancienne dans les tons bleus. Ce tribunal communiquait directement avec la maison d’arrêt, située à l’arrière.
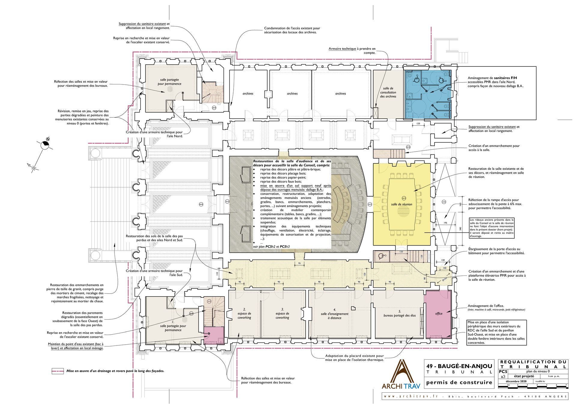
En juin 2019, nous avons déposé un diagnostic du tribunal de Baugé comprenant une étude documentaire avec un rappel historique présentant la construction et les restaurations successives, une description et une analyse architectural avec un diagnostic de l’état actuel reporté sur des documents graphiques et iconographiques.
Les travaux commencés en décembre 2021 se divisent en 2 tranches :
1/
Restauration des extérieurs avec la restauration la réfection à neuf des couvertures et des zingueries, la restauration des parties hautes des façades, la restauration des façades et des soubassements avec la dépose en démolition des parements de pierre altérés, la restauration des parties moulurées ; le rejointoiement et la réfection des parties enduites ; la révision/restauration des menuiseries extérieures et l’assainissement des bas de murs.
2 / Restauration et aménagements des intérieurs (en collaboration avec Laurent Vié architecte) avec la restauration intérieure de la salle des pas perdus, des couloirs latéraux de la salle d’audience, salle des délibérés ; divers aménagements selon les parties du bâtiment ; l’aménagement de bureaux et espaces de service ; l’aménagement de la salle d’audience en salle du conseil, avec restauration des décors intérieurs et du mobilier conservé ; travaux d’aménagement permettant à cet espace de s’adapter à son nouvel usage sans perdre le caractère et l’esprit du lieu ; et la mise en œuvre d’un système de chauffage et de ventilation adapté couplé à un projet d’éclairage.










